- 共筑丝绸之路精神家园 ——乌兹别克斯坦花剌子模州希瓦古城保护修复纪实
花剌子模州希瓦古城位于乌兹别克斯坦西部阿姆河古三角洲的冲积平原上,是阿姆河流域最重要古城之一。希瓦古城从4世纪就开始持续的商贸活动,在16世纪末成为希瓦汗国的都城,与撒马尔罕、布哈拉同为历史上中亚枢纽地区的丝绸之路重镇,具有极高的知名度和影响力。作为乌兹别克斯坦首处世界文化遗产的希瓦古城伊钦·卡拉内城,拥有几乎所有伊斯兰风格城市的主要建筑类型,古城被厚重城墙包裹,内城遍布一座座宫殿、经学院和清真寺,联合国教科文组织评价它:“伊钦·卡拉内城的建筑纪念物构成了杰出且独特的中亚传统建筑群,是花拉子模城市文明的独特见证。”然而,这个丝绸之路上曾经辉煌一时的宏大都城,因为后期战乱频仍、年久失修,现在日渐衰落。
2013年9月,习近平主席访问中亚四国,提出共建“丝绸之路经济带”的重要倡议。为落实“一带一路”倡议,2015年4月,中乌两国政府商定援助乌兹别克斯坦花剌子模州历史文化遗迹修复项目,集中在希瓦古城伊钦·卡拉内城实施。2016年6月,习近平主席在塔什干接见在乌参与文物保护与联合考古的中国文物工作者代表。2017年以来,希瓦古城保护修复项目稳步实施。2020年3月,乌兹别克斯坦总统沙夫卡特·米尔济约耶夫视察这一中国政府援助文物保护修复项目,并高度评价中方的修复工作。目前,该项目已顺利通过中方内部竣工验收。
该项目修复内容包括希瓦古城中的阿米尔图拉(Amir Tura)经学院(建筑面积约3000㎡)和哈桑穆拉德库什别吉(khasahmurad)清真寺(建筑面积约188㎡)保护修复及其周边相关环境(约7600㎡)综合整治。在国家文物局的指导下,项目实施中,积极探索“创新合作、协同实施”的援外文物保护合作交流机制,以文物古迹保护修复实务为核心,统筹兼顾,与外方协同共施文物保护科学研究、专业技术合作、区域人文交流与人才队伍培养等国际文物保护合作交流。

图1 修复前的阿米尔﹒图拉经学院

图2 修复前的哈桑﹒穆拉德库什别吉清真寺
丝路上的“千顶之城”
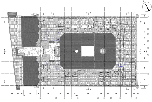
希瓦古城内城南北长650米、东西宽400米,面积约26公顷,分布着50余处古老的文物建筑和200余处民居。整个古城建筑群密集均布,具有高度的统一性,各类建筑在希瓦古城周边城墙与城市轴线的统摄下有机地结合在一起,见证了14世纪至19世纪伊斯兰建筑的发展历程。


图3 希瓦古城伊钦·卡拉内城遗产区划图及实景鸟瞰
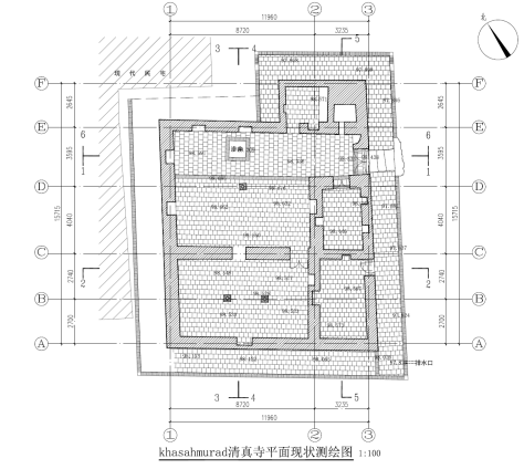
此次修复项目对象阿米尔·图拉经学院和哈桑·穆拉德库什别吉清真寺两栋文物建筑为内城南北轴线上具有代表性的伊斯兰公共建筑。阿米尔·图拉经学院由穆罕默德·拉希姆汗一世的儿子阿米尔·图拉于1870年建造。建筑坐东朝西,整体平面为“回”字形格局,围合中部庭院空间,是伊斯兰经学院建筑的典型形制。经学院建筑东西长51.4米、南北宽36.8米,建筑主体高约6.8米(现地面露出部分),西部入口高约14.5米(现地面露出部分),占地面积1980平方米,建筑面积约3000平方米。经学院建筑内主要的功能包括中央大厅、教室和寝室,共有约50个房间。哈桑·穆拉德库什别吉清真寺建造于18世纪晚期。清真寺主体建筑坐南朝北,主体由礼拜堂和宣礼塔构成,是希瓦古城小型清真寺的典型形制。建筑整体东西14.3米、南北16.3米,主体高约7米(自原始地面)。

图4 阿米尔·图拉经学院一层平面现状测绘图(上图)

图4 哈桑·穆拉德库什别吉清真寺平面现状测绘图(下图)
治病求本、标本兼治修复建筑本体病害
在修复项目实施过程中,项目组通过对两栋文物建筑本体进行全面详细的“诊察”,发现两栋建筑本体病害包括建筑墙体和屋顶变形、开裂、整体结构裂缝较多、抹灰斑驳脱落以及建筑基础不均匀沉降等。经学院的建筑病害相对严重且发育速度较快,需要尽快实施干预措施。
文物建筑的病害表现为“标”,修复措施则需通过整体审查病因,切中要害“治本”。经过勘察分析,造成经学院建筑基础不均匀沉降的主要原因是水害,包括地下水、地表水以及毛细水在内的共同作用。地下水的影响首先是因为经学院建筑周边地下水水位不均匀。其次是居民生活污水直接排向路面,导致地表水常年淤积,加之地下水毛细作用对建筑基础的腐蚀,直接导致了南侧基础的连续不均匀沉降。

图5 经学院建筑南立面各部位倾斜检测模型
对于建筑基础的修复,依据建筑基础不均匀沉降的数据并结合沉降监测对基础病害发展趋势的判断,项目组对建筑基础连续、大幅度下沉的重点部位采取了局部分段交叉灌浆的方式进行加固,防止其进一步下沉对建筑带来不利影响。对其他局部轻微沉降的基础部分则采取了持续监测、不进行过多工程干预的审慎态度。

图6 修复后的经学院正立面(左图)及宣礼塔(右图)
项目组在运用这些现代技术采取“硬手段”的同时,也尊重当地传统民居建筑建造特点,在建筑地面砖基础之上设置或修复了油毡、芦席、下卧石、木隔潮枋等建筑基础防潮层,同时注重在施工过程中对建筑基础的通风、干燥措施,使用“软方法”阻止地下水毛细作用对建筑的不良影响。

图7 修复后的清真寺立面(左图)及清真寺前小广场(左图)
知常达变、适度优化古城景观风貌
除上述经学院和清真寺文物建筑修复,希瓦古城保护修复项目还通过实施文物建筑展示、古城民居整治、南北主干道提升、北门及城墙整饬以及古城广场景观塑造等措施,整体提升了北门区域环境质量,使北门成为希瓦古城新开放的主要游览出入口。
项目的环境展示与整治通过道路铺装设计串联古城南北主干道上的重点文物建筑,铺装设计注重伊斯兰建筑几何图形的运用,并通过当地黏土砖铺砌方式及模数的变化完成,设计元素简洁、手法一致。广场设计强调在密集民居中创造舒朗平整的整体形式感。为彻底解决排水不畅带来的建筑基础糟朽、居民出行不便问题,整体重新梳理了场地排水。根据地势与现状,采取“场地分区、道路分段”的排水策略,并沿用了希瓦古城原有渗井与地表蒸发、地下径流结合的排水方式及道路坡度,以减少场地变化及后期维护困难。

图8 修复后清真寺夜间景观(左图)及门前广场绿化景观(右图)

图9 修复后的古城北门(左图)及北门广场景观环境(右图)

图10 修复后北门城墙

图11 修复后的经学院(左图)及广场(右图)夜间景观
项目组通过深入理解希瓦古城作为世界文化遗产的突出普遍价值,探索保护修复中“最小干预”和“预防性保护”的理念与方法,将世界遗产历史城镇真实性与完整性保护、历史建筑修复与遗产地人居环境提升有机融合,从希瓦古城整体历史格局的角度将修复项目整合成为古城又一重要遗产展示节点,推动希瓦古城发展成为优质的世界文化遗产地。
美美与共、民心相通,项目实施惠及当地
项目组秉承合作共赢理念,在乌期间积极履行文化遗产保护的国际共同责任,着力对当地工人进行技能培训,带动民生经济,促进两国间文化交流。积极与希瓦市政府沟通古城保护发展计划于需求,聘用当地工匠与技术工人,按照当地的生活、工作习惯有序安排日常施工工作,有效地促进了当地的社会就业,得到古城居民的支持和认可。
同时,项目组组织国内专家不定期赴现场磋商相关保护修复工作,既注重学习研究中亚文物建筑保护修缮传统工艺,也帮助举办对乌文物保护技术人员的业务培训,加强中乌在文物保护修复与联合考古中的学术交流与务实合作,并于2018年9月在中国举办亚洲区域文化遗产保护与管理高级人才培训班,以国际文化遗产合作项目带动提升当地专业人员技术水平。

图12 实施现场与希瓦市长沟通项目实施细节 图13 施工现场操作培训
援助乌兹别克斯坦花剌子模州希瓦古城保护修复项目的实施得到乌方社会与国际专家的一致高度评价。希瓦市长朱马尼亚佐夫感谢中国在希瓦古城开展的保护修复项目为当地旅游发展注入新的活力,同时开启中乌文物保护工作者交流与合作的新纪元。在科学实施希瓦古城保护修复项目的同时,中方还注重深化中乌及中亚地区间的文化遗产保护交流。2018年11月,中乌双方在塔什干共同召开“一带一路”文物保护技术国际研讨会——希瓦古城保护与利用国际交流会。增进了中国与“一带一路”沿线国家和地区间的文物国际交流合作。

图14 修复前的民居建筑及周边道路环境

图15 整饬后的北门附近民居及道路环境
2019年5月,习近平主席在亚洲文明对话大会开幕式主旨演讲中提出:“中国愿同各国开展亚洲文化遗产保护行动,为更好传承文明提供必要支撑”。实施亚洲文化遗产保护行动,是习近平主席关于构建人类命运共同体、共建“一带一路”、推动周边外交的有力措施。作为中国在中亚地区实施的第一个援外文物保护修复合作项目,希瓦古城保护修复项目成为亚洲文化遗产保护行动的具体实践,将中乌人文交流拓展至文物保护修复和研究领域,建立中乌文物保护修复合作机制,主动发挥文物保护的文化基础作用,助力夯实“一带一路”国家民心相通的人文基础。刘玉珠局长在《奋力谱写文物事业改革发展新篇章》一文中欣然评价,援外文物保护修复合作与中外联合考古已然成为“一带一路”文化建设的重要收获。
中乌合作保护修复,谱写两国友谊佳话。希瓦古城这颗古丝绸之路上的明珠焕发出新时代的璀璨光芒,文物保护在21世纪的“一带一路”沿线谱写了中国与中亚地区文明交流互鉴的当代新篇章。